ハンモックで遊べる明るいリビング!66㎡につめこんだ奥様の夢のリノベ

※写真をクリックすると拡大して事例写真をスライドしながら見ることができます。

新築でご購入された戸建からの住み替えで、マンションをご購入され、リノベーションをしました。
上のお子様が小学校に上がるのを機に、学区変更によるお引越しです。
それまでが戸建住まいだったこともあり、ご家族4名には、少々手狭に感じる面積ではあるものの、極力それを感じさせない、使いやすい間取りを目指しました。

リノベーション済みの物件のご購入でしたので、手を加えるにはもったいない印象でしたが、お客様のライフスタイルには合わない間取りと、販売時の雑な施工のリフォームに手を加えざるを得ない状況でした。

test子供が大喜びのリビング

testハンモックに畳コーナーと、子供が大喜びのリビング。おもちゃ置き場を設け、片付けルールが自然とできます。
将来はご夫婦の寝室として畳コーナーを使用できるように、天井にはロールスクリーンを取り付けても目立たないように掘り込みを造作。

キッチンから見渡せるリビング

キッチンから見渡せるリビング。
明るく、開放感のある配置です。
家事をしながらTVをみることができます。

家族みんなで使える便利なカウンター

キッチンに向かったワークカウンター。
お子様の宿題にも、リモートワーク(在宅ワーク)のご夫婦にも、家族みんなで使える便利なカウンターです。
カウンター下には、棚を設け、文房具などがカウンターに出しっぱなしにならない工夫を。
ニッチには、ご家族の写真を飾って、リモートワーク中もほのぼのした気持ちになれます。

バルコニーとダイニングに向かった対面キッチン

シンクが明るいバルコニーとダイニングに向かった対面キッチンになっています。
造作カウンターを設けて、雑然としがちな手元は隠せるようにしました。
キッチンの天板は、ステンレスヘアライン仕上げで、かっこいい雰囲気に。
配管用の腰壁のスペースを利用したニッチには、調味料などを収納。

変形のⅡ型キッチン

変形のⅡ型キッチン(シンク・コンロが別のキッチン)です。
キッチンの総合幅は、I型よりも広く、大型の食洗機ミーレも入っています。
コンロ背面には大容量の引き出しカウンター収納を設けて、使い勝手が抜群に上がりました。

2名並んで立てる洗面台

引き出しを組み合わせた造作洗面台。
ボウルを片側に寄せたことで、朝の混み合う時間にも2名並んで立てる洗面台にしました。
オープンスペースには、洗濯カゴを入れられるようにしてあります

かっこいいカラードア

オーク無垢材との組み合わせがかっこいいカラードア。
マットな質感が、壁の珪藻土とも合っています。

ウキウキした気持ちで服選びができる空間

廊下から家族みんながアクセスできるウォークインクローゼット。
アクセントクロスを貼って、ウキウキした気持ちで服選びができる空間に。
床は、傷に強い塩ビタイルのヘリンボーン柄をチョイスして、遊び心を。

アウトドア用品を収納できる可動棚

靴の収納とは別にアウトドア用品を収納できる可動棚を造作。
限られた玄関スペースですが、家の中の収納にしまいこむより、出し入れが非常に楽になりました。

工事前写真

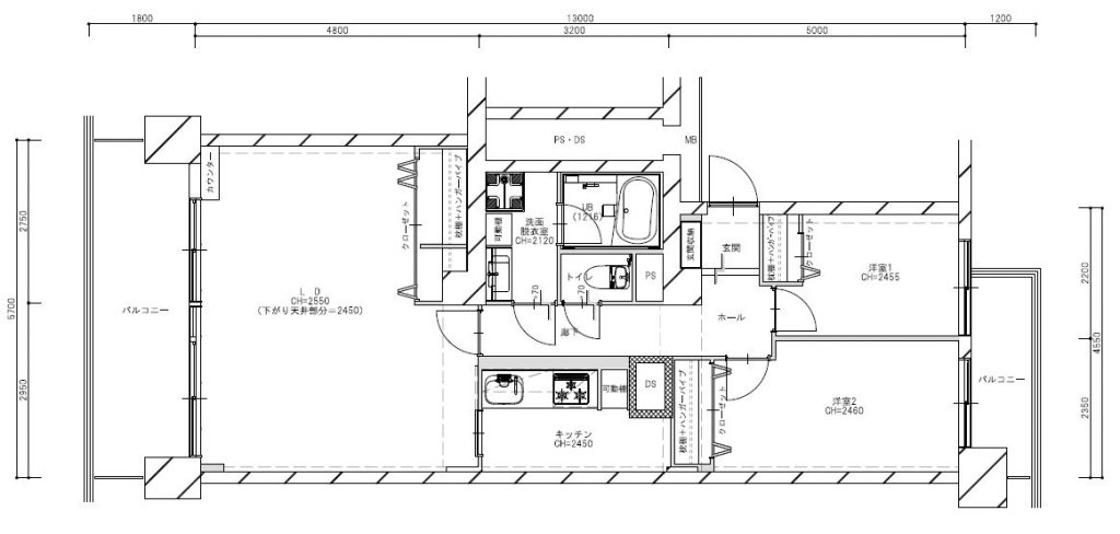
現況平面図

プラン平面図

事例DATA

  • 所在地:横浜市港北区
  • 建物の種類:マンション
  • 築年数:築47年
  • 施工期間:3ヵ月
  • 施工面積:66㎡
  • 費用:660万円