ご不満を解消!心地良い間取りに自然素材リノベーション

※写真をクリックすると拡大して事例写真をスライドしながら見ることができます。

地方への転勤でしばらく賃貸に出されていたお住まい。
築浅でしたが、家族構成と間取りが合わず、戻られるタイミングでリノベーションを決意されました。
築浅のお住まいの為、工事内容にメリハリをつけて、絶対に叶えたい事は妥協せず、そのまま使えるところは活かすプランとなりました。
元が新しい分、イメージを変えるため無垢材・ウッドチップクロス・タイル・室内窓・照明・開放感…と素材やデザインにこだわり、雰囲気を一新させました。
もちろん、、ご不満に思われていた間取りも解消!
必要な場所に収納の量を確保し、収納するための無駄な動きをなくして、家事導線がスムーズになりました。
共働きのご夫婦には嬉しい、効率的な間取りを実現させました。

ワクワクするキッチン

キッチンの間仕切りをなくして、LDKをひとつの空間に感じられるようにしました。
奥まで光が届くようになり、奥様が購入された照明を飾り、立つたびにワクワクするキッチンになりました。

表情のあるオークの無垢材

表情のあるオークの無垢材は、幅の広いタイプをセレクト。
お客様がお持ちの味わいのある家具とも相性もばっちりでした。

無垢材の収納扉を造作

無垢のフローリングに合わせて、無垢材の収納扉を造作。日用品のストックをしまえる便利な収納になりました。
既存の建具や食器棚は活かしてコストダウンを図っています。

収納力を向上

交換するほど古くはなかったのですが、既存のキッチンでのお悩みだった収納力を向上できるとのご提案をさせていただいたところ、交換することに。

バルコニーからの光と風を採りこむ

LDK側に室内窓を設けたことで、明るさを確保し、バルコニーからの光と風を採りこむことができるようになりました。

ウォークインクローゼットの使いやすさを改善

寝室のウォークインクローゼット。広さを倍に広げたことで、使いやすさを改善し、寝室に物が出ないようにすることができました。

北側でも心地良い子供部屋

無垢材、ウッドチップクロス、インナーサッシ(二重窓)で、北側でも心地良い子供部屋になりました。

2Wayアクセスが可能なW.I.C

廊下・子供部屋からの2Wayアクセスが可能なW.I.C.。お持ちの引き出し収納をうまく組み合わせて、使い勝手の良いクローゼットになっています。

シンプルでカッコいい印象の玄関

オークの無垢材との相性のよい、モルタルのような雰囲気を出してくれるタイル。
シンプルでカッコいい印象の玄関に。

雰囲気を変えたトイレ

トイレは、まだまだご使用いただける状態のため、既存品を活かして、内装の張り替えとオープン棚の追加で雰囲気を変えました。

洗濯機上にオープンの可動棚

洗濯機上には、オープンの可動棚を新設しました。下の段の棚下には、アイアンバーを取り付け、ハンガーが掛けられるようにしてあります。

工事前写真

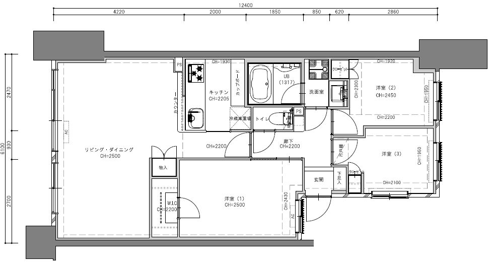
現況平面図

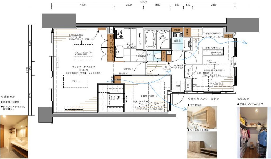
プラン平面図

事例DATA

  • 所在地:横浜市鶴見区
  • 建物の種類:マンション
  • 築年数:7年
  • 施工期間:2ヵ月
  • 施工面積:65㎡
  • 費用:550万円