築40年以上の戸建住宅を快適なお住まいへリノベーション

※写真をクリックすると拡大して事例写真をスライドしながら見ることができます。

ご家族5人でお住まいになられていた築40年以上の戸建住宅。
昔ながらの細かく仕切られた間取りの不便さや、使い勝手の悪いキッチン。
暑さ・寒さの解消など、ご希望はたくさんありました。
明るい南側の居室がうまく使えていない事も、もったいなさを感じられてた奥様。
生活する中でお困りの事が明確で、その点の改善と、お子様の成長といったライフスタイルの変化を考慮したプランをご提案させていただきました。
南側の大きな掃き出し窓を採り入れたLDKは、明るく、温かく、広々と、家族の集える場所になりました。
冷気・暖気が入りやすい大きな窓には、二重サッシを取付けて、断熱性・結露対策も万全です。

気持ちの良い無垢フローリング

ごろっと寝そべっても気持ちの良い無垢フローリング。家族5人が集まっても広々と過ごせるLDになりました。

珪藻土の壁でほっこり

無垢の床に、現わした柱や珪藻土の壁が、ほっこりとした雰囲気を作りだしてくれています。キッチンの横には、奥様のワークスペースもあります。

キッチン横のワークスペース

キッチン横のワークスペース。お子様の学校の書類や、趣味のスペースとしてご活用させています。アクセントクロスとオープン棚が目を惹きます。

収納たっぷりの玄関

左には、ご家族5名分のよく履く靴を収納できるオープン棚、右には、目隠しできるアウター収納兼靴収納を設けました。

思わずニヤける造作洗面台

LDKに入ってすぐに配置した造作洗面台。少しのぞいて見えるアクセントクロスや、かわいい水栓に思わずニヤけてしまいそうです。

ヨーロッパのような雰囲気のトイレ

すっきりとしたデザインのトイレ。床材はヘリンボーン柄の塩ビタイル。カラークロスと組み合わせて、ヨーロッパのような雰囲気に。

優しい雰囲気のトイレ

2階のトイレは、淡いブルーのクロスと背面の花柄のアクセントクロスで、優しい雰囲気のトイレに仕上がりました。

大き目の手洗器を設けたトイレ

大き目の手洗器を設けた2階のトイレ。
造作建具の引戸には、ペットドアをつけて、猫もトイレに入れるようにしました。

居心地の良い子供部屋

お兄ちゃんのお部屋は、広々としたカウンターデスクを造作。床はオーク無垢材なので、居心地の良い子供部屋になりました。

工事前写真

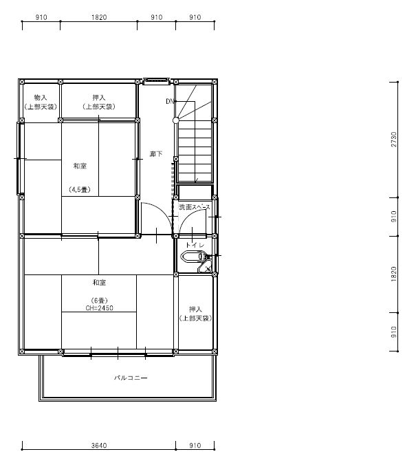
現況平面図

プラン平面図

現況平面図 2

プラン平面図 2

事例DATA

  • 所在地:神奈川県平塚市
  • 建物の種類:戸建て
  • 築年数:40年
  • 施工期間:2ヵ月
  • 施工面積:87㎡
  • 費用:1018万円