カバ(バーチ)無垢材がやさしい印象の空間を作り出す、マンションリノベ
※写真をクリックすると拡大して事例写真をスライドしながら見ることができます。
ご夫婦と、リノベ後には一緒に住みたいと思って出会いを探していたワンちゃんが暮らすマンション。
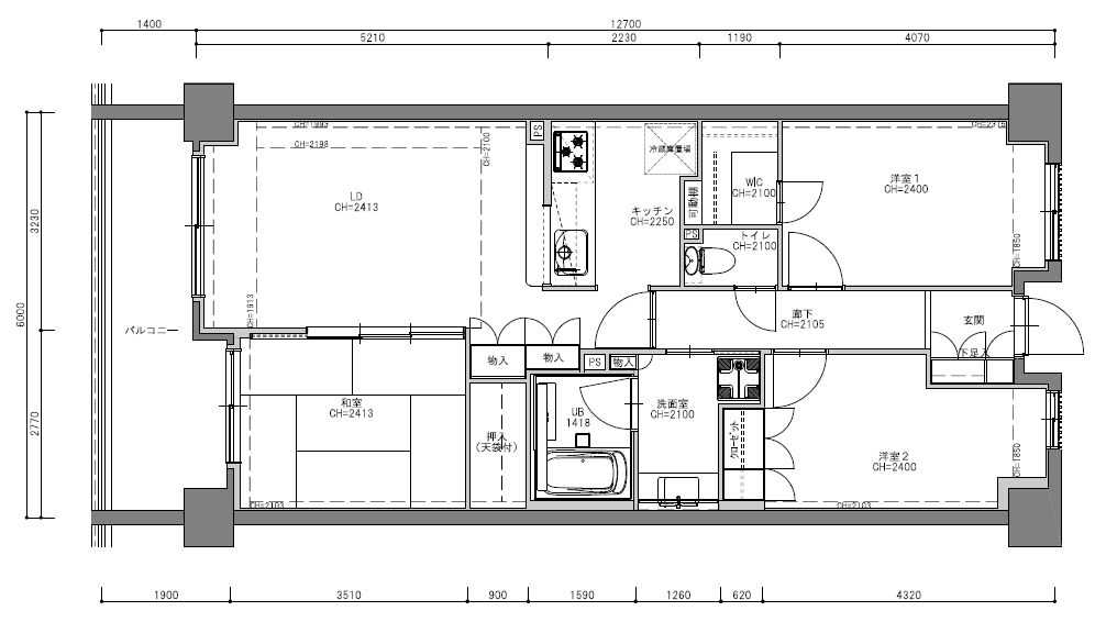
当初の間取りは、事務所仕様だったこともあり、個室は共用廊下側の窓がない配置でした。
寝室にするには息苦しい印象のため、寝室位置の移動を含めた間取り変更をプランニングしました。
当初は、キッチンと浴室を絶対に行いたいと思われていたのですが、現地調査に行ってみると真新しいキッチンで非常にもったいない印象でした。
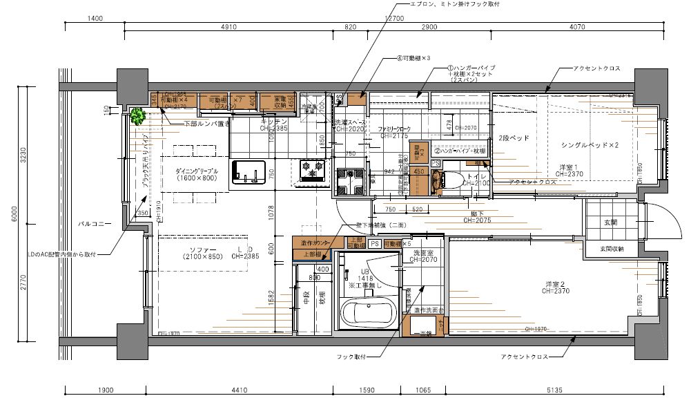
その為、キッチン設備はいかしながら暮らしやすい間取りのご提案を計画いたしました。
それがコスト削減にもつながり、結果として、その他の箇所で我慢することなく思い描いたリノベーションを行うことができました。
リビングダイニング1
カバ(バーチ)無垢フローリングにより、印象がガラッと変わったLDK。 カバ材の無垢フローリングに、こだわりの造作窓、各所に飾られたグリーンと、ほっとするやさしい空間になりました。 収納をしっかりと設けたため、シンプルですっきりとしたLDに。
ご新居で新たに迎え入れた愛犬のケージもくつろぎ空間に溶け込んでいます。 寝室をLDK側に設けることで、狭く感じるのでは・・とご心配されていましたが、床材を明るい無垢材にされたり、 室内窓を設けたことで圧迫感が感じにくくなっています。
リビングダイニング2
愛犬と心地良く過ごすことができる無垢フローリング。
元気なワンちゃんは、いつも走り回っているようですが、撮影の時には、おやつをもらってお行儀よくお座りしていました。
ペットの脚にもやさしい無垢材です。
リビングダイニング3
窓側のカウンター材が以前のインテリアのカラーで残ってしまうと、印象が強かったため、交換をご検討されていましたが、 予算をかけられず・・。
木製で交換するのではなく、無垢フローリングと水に強い塩ビタイルを組み合わせたグリーン置き場カウンターに変身させました。
キッチン~パントリー
LDからキッチンを臨むと目に入るアクセントクロス。
キッチン設備は既存品をいかしたので、アクセントカラーでイメージを変えました。
元々ついていた大きな吊戸棚の収納は、圧迫感が出ないようにパントリーの奥へ移設。
シンク背面には、家電とゴミ箱を置ける収納を新たに造作しました。
造作家電収納棚
シンクの背面に新たに造作した家電収納カウンター。
使用頻度の高いレンジを置ければ良いとのご要望から、最小限のサイズとして圧迫感を感じさせない収納にしました。
カウンター下のスライド棚を出せば、作業スペースとしてご利用いただけるようになっています。
パントリー1
左側のカウンター+吊戸棚収納は、もともとシンクの背面についていたものを移設して転用しています。
扉付きの隠せる収納と、右側の可動棚とで収納量が多いパントリーになっています。
奥の引き戸を開ければ、玄関収納へ続き、回遊性のある間取りになっています。
パントリー2
ストック品を収納できる大容量のパントリー。
可動棚なので収納したいものに合わせて高さを可変できます。
ストック品をひとまとめにできるので、どこに何をしまったか探す手間がなくなると大好評です。
ワークスペース
リモートワークを視野に入れたワークスペース。
明るい窓側に配置することで圧迫感をなくし、無垢フローリングと木製の造作カウンターで心地良い印象になりました。
LDから少し奥まっているので、落ち着いたおこもり空間に。お仕事が捗りそうです。
玄関
パントリー・キッチンとつながり、回遊性がある玄関の収納。
手前には、靴収納用の可動棚を配置し、ロールスクリーンで目隠しした先には、水などのストックやスーツケースなど隠したいもの用の可動棚を設けています。
右に進むとパントリーへつながります。
ウォークスルークローゼット
洗面脱衣室には、下着や洗濯カゴなどをしまえるようにカウンター収納を設けました。
洗濯物の一時置きにも便利です。
ウォークスルークローゼットにつながっているので、浴室で乾燥させた洗濯物をそのまま収納できる便利な動線になっています。
ウォークスルークローゼット2
寝室から洗面脱衣室に抜けることができるウォークスルークローゼット。
可動棚とハンガーパイプを左右両面に設けています。
柱型や梁型が一番多く出ている箇所のため、効率良く収納ができるように配置しました。
寝室の室内回転窓
寝室には、造作で回転型の室内窓を2ヶ所に設けました。
風を通す時には90度に回転させて、最大限通るようにとのご希望からです。
カバ材のフローリングと雰囲気を合わせた、木の温かみあふれる室内窓になりました。
事例DATA
- 所在地:横浜市中区
- 建物の種類:マンション
- 築年数:築18年
- 施工期間:2ヵ月
- 施工面積:63㎡
- 費用:590万円




























