紆余曲折!床暖房をやめて無垢フローリングと珪藻土のあこがれ住まいへ

※写真をクリックすると拡大して事例写真をスライドしながら見ることができます。

購入当初に行ったリフォームで水漏れが発生し、リフォームを実行せざるを得ない状況になったお施主様。
水漏れの影響が出ているところは、もちろん必須。その他は、どこまで手を付けるか?
どんな内容でやるか?素材は何を選んでいくか?お子様の成長に合わせた間取りはどうするか?
寒がりで床暖房大好きなご主人様と、天然素材の服飾のお仕事をされていることもあり、家でも自然素材に囲まれたい奥様は、重視されるポイントが違うこともありました。
そのため、お打合せ中は、意見交換の場にもなり、それぞれの素材の良さ、デメリットなど何度も話し合いました。

最終的な仕様決めは、ご主人様のやさしさがあふれたお打合せになり、ほとんど奥様の夢を叶えられる内容に決定。
奥様の夢が叶う~!とこちらまで大喜びしてしまうほどでした。

ダイニングキッチン

キッチンの奥まで視線が通るようになったため、キッチン側からだけではなく、リビングダイニング側からも広くなった感覚を味わえます。
角部屋なので窓が多く、開放感があるメリットの反面、西日のまぶしさや、寒暖を感じやすい点など、改善したいと思う部分もありました。
今回は、二重サッシを取り付け、暑さ・寒さ対策を行っています。
さらにウッドブラインドを付けることで日差しをコントロールできるようにしました。
子ども部屋との間仕切り戸は、クローゼット横の壁に納まるように設計しているので、開けた時には余計な壁が残らず、すっきりとした印象に。

リビング

広々としたリビングに置かれた奥様お気に入りのソファーは、後ろ姿だけでもとびきりの存在感。
無垢フローリングと珪藻土のお気に入りの空間に、お気に入りの家具を入れた瞬間はたまらなかったのではないでしょうか。
子ども部屋へは、必ずLDKを通るので、成長後も孤立しない配置となっています。

キッチン

コンロ前の壁が最小限になり、明るく、ダイニングとのつながりをより感じられるように。
フルフラットのペニンシュラキッチンなので、作業スペースも増えました。
ナチュラルな雰囲気の中にも高級感を感じられるキッチンになっています。
ダイニング側にも扉・引き出しの収納付き。
隠せる収納は、LD空間をすっきりさせるポイントです。
既成品キッチンの条件として、コンロ前の壁をパイプスペースのみにすることができない状況でしたが、壁を極力取り払いたいというご希望をいただきました。
その為、メーカーで対応できない部分には、カウンターを大工造作+タイル貼りで設ける工夫をしました。

キッチン2

天板がフルフラットになり、コンロ前の壁の一部と、天井からの下がり壁がなくなったことで、キッチンに立った時にダイニングのご家族と目線が合いやすくなりました。
つながりを感じられるキッチンです。
お気に入りのペンダント照明が映える大人っぽいキッチンになりました。

子供部屋

個室が必要になってくるお年頃とはいえ、まだまだ姉妹で過ごすことも多いため、2人で使う広々とした子ども部屋としました。
やわらかいホワイトカラーの4枚引戸でLDとつながっており、閉めても圧迫感を感じにくいようになっています。
並べたベッドの上にはロールスクリーンを取付け、個室感を感じられるようにしました。
移動式の収納を壁側に設置し、将来的によりプライベート空間がほしくなった時には中央に移動して間仕切り代わりにできるよう計画しています。

子供部屋2

リビングからもすぐにお子様の様子が見渡せ、大きな窓からの光も取り入れられて明るい空間に。

奥様の部屋

奥様のワークスペース兼ベッドルーム。
デスク前には、お仕事用具や書類などを置ける可動棚を2スパン配置。
造作ではなく置き家具のデスクとすることでコストダウンをはかりました。
淡いグレーのアクセントクロスが、落ち着いた印象で、お仕事がはかどりそうです。

奥様の部屋2 収納

ベッドサイドには固定棚を取付け、ご家族の写真やお気に入りの小物を飾れるように。アイアンのブラックカラーの棚受けがシックな雰囲気に。
元和室の押入は、ハンガーパイプに作り替えて大容量のクローゼットに。
リネンの天然素材カーテンでやわらかい雰囲気の目隠しをしました。
枕棚部分は、地震で中身がベッドに落ちてこないよう、扉を造作しています。
各居室の天井には収納式の物干しバーを設け、奥様ひとりに家事の負担がこないよう、それぞれが乾いた洗濯物の管理をできるようにしています。

ご主人様のワークスペース兼寝室

カウンターや壁の可動棚は大工造作で設置して、引き出しはご購入品をうまく組み合わせたアレンジのきく書斎。
パパの書斎は、お子様にとってはちょっと特別感があります。
時々遊びに来ては、会話を楽しむ姿がほほえましく、パパ専用の書斎冷蔵庫に何が入っているかを教えてくれました。
家族それぞれが自分のスペースを持つことで、集中するときと、団らんでくつろぐときのメリハリがつくのかもしれません。
リモートワークにもピッタリな書斎兼ベッドルームです。

ご主人様のワークスペース兼寝室2

作業スペースを効率よく広くとるために、カウンターをL型に造作しました。
壁掛けTVの上部には、壁付けブラケット可動棚を設け、空間を無駄なく利用しています。
(ベッドの横には、ご主人様専用の冷蔵庫置場を確保し、ビールタイムを楽しめるおこもり空間になっています♪)

廊下

珪藻土の塗り柄がダウンライトに照らされて、家に入った瞬間からいい雰囲気を味わうことができます。
お客様がご購入されたコート掛けは、オークの無垢材に合わせた雰囲気のものをチョイスされてイメージを合わせています。

トイレ

ホワイト×グレーの上品なアクセントクロスを使用したトイレ。
限られた空間だからこそ、お気に入りのカラーや柄をぜひ取り入れてみてください!

工事前写真

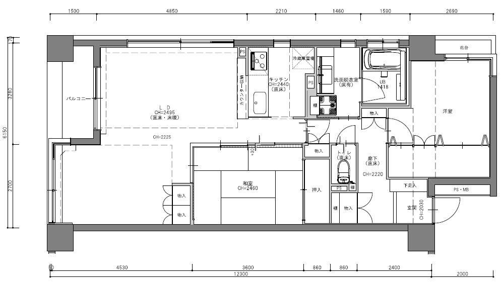
現況平面図

プラン平面図

事例DATA

  • 所在地:横浜市中区
  • 建物の種類:マンション
  • 築年数:築20年
  • 施工期間:2ヵ月
  • 施工面積:68㎡
  • 費用:1100万円