自然素材と海のコラボ!家で過ごす時間が楽しくなるお住まい
※写真をクリックすると拡大して事例写真をスライドしながら見ることができます。
ご夫婦とワンちゃんの暮らし。
賃貸でお住まいだったお隣の角部屋が売りに出されるとのお話があがり、2方向から海が見えるお部屋のリノベーションとなりました。
室内窓のあるリビングは、左にルーフバルコニー、正面の室内窓を通して、寝室の窓の外には海が見える非常に恵まれた環境。
床は、アンティークホワイトの自然塗装を行った無垢オーク材。
壁には珪藻土と、自然素材に囲まれて、景色も楽しめる心地良い空間になっています。
キッチン正面のガラス入り引戸は、W.I.C.の入口です。
明るいリビング
角部屋であるものの、リビングには、大きな掃き出し窓が一つの間取りですが、室内窓を設けることで寝室側の窓からの明るさを採り入れることができ、明るいリビングに。
室内窓は、空間の良いアクセントになっています。
キッチンは広々使いやすいI型
キッチンは、お料理好きなご主人様が広々使いやすいI型。
奥のアール開口をくぐると、パントリーになっていて、内部は、オープンの可動棚で出し入れがしやすいようになっています。
壁は自然塗料の塗装で仕上げました
壁は、ウッドチップクロスを貼り、自然塗料の塗装で仕上げました。
オガファーザー(ウッドチップクロス)は、絶妙なニュアンスカラーで塗ることができるので、塩ビクロスにはないカラーリングと質感が、まるで海外にいるかのような気持ちにさせてくれます。
海と青空に癒される寝室
海と青空に癒される寝室。
窓際のアンティークチェアーに座って、海を眺めたら、あっという間に時間が過ぎそうです。
床材は、塩ビタイルを採用していますが、アンティーク家具も合う雰囲気のものをチョイスしました。
かわいらしい造作洗面台
壁にデザインタイルをあしらった、かわいらしい造作洗面台。
無垢フレームのミラーキャビネットと合わせて、木の質感が雰囲気を演出する洗面台になりました。
洗面台下は、オープン棚を設けています。
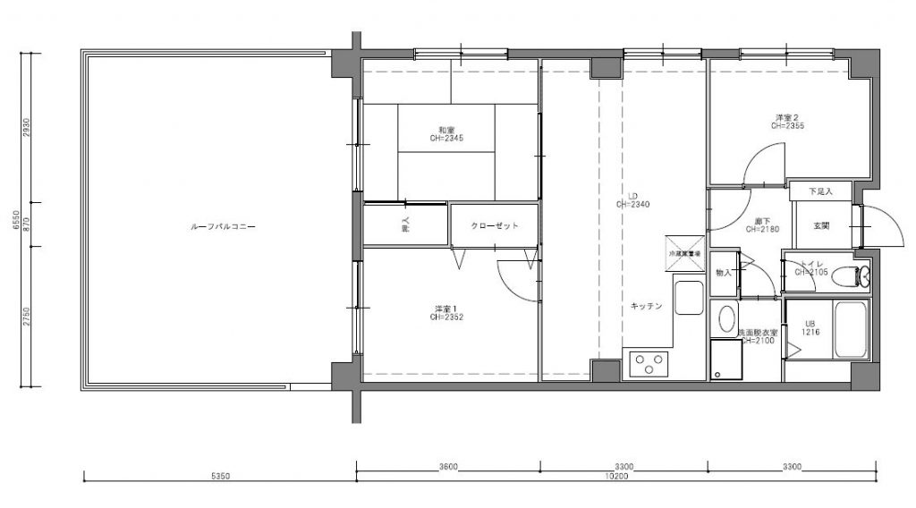
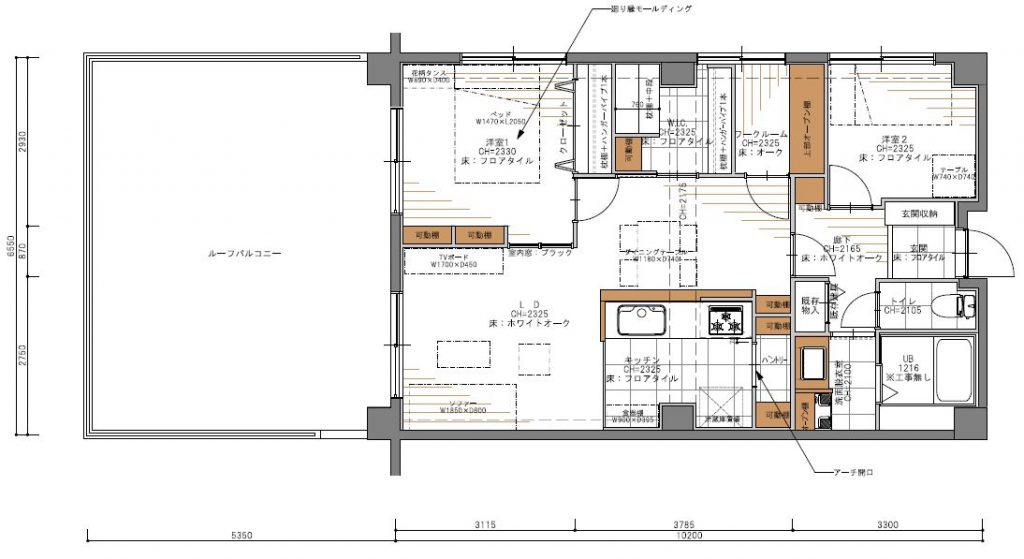
工事前写真



事例DATA
- 所在地:横須賀市
- 建物の種類:マンション
- 築年数:築23年
- 施工期間:2ヵ月
- 施工面積:65㎡
- 費用:800万円

























