高級感あふれる、フルフラット対面キッチン

※写真をクリックすると拡大して事例写真をスライドしながら見ることができます。

中古マンションご購入後のリフォーム。

以前は、完全独立型のキッチンで、キッチンに立つとリビングの様子が見えない間取りでした。

対面のフルフラットキッチンで家族とつながりを持ちながら、キッチンに立ちたいということが一番のご要望。

築浅でまだきれいなお住まいなのでLDの既存の床暖房に干渉しない、床の工事も最小限で済むプランを練り、間取り変更を行いました。

キッチンは、奥様一目惚れのものを。

高級キッチン

水晶の入った人大天板の高級キッチン。背面には、圧迫感のないカウンター収納。

木製カウンター

手前の木製カウンターは、大工造作で設置。携帯を置いたり、家族写真を飾るスペースに。

ダイニング側の可動棚

ダイニング側には、書類や小物を収納できる可動棚を設けました。

キッチン側の可動棚

キッチン側にも頻繁に使用する乾物や調味料、食品ストックをしまえる便利な可動棚。

パントリー

キッチンの奥には、引戸で区切られたパントリー。主婦には嬉しいスペース。

洗面台

洗面台は、既存のまま残すことでコストダウンしつつ、一面鏡を収納力のある三面鏡に交換。

洗面室用の収納

キッチンの間取り変更で生まれた空間に、洗面室用の収納を設けました。

トイレにカウンター手洗器

すっきりとシンプルなカウンター手洗器。

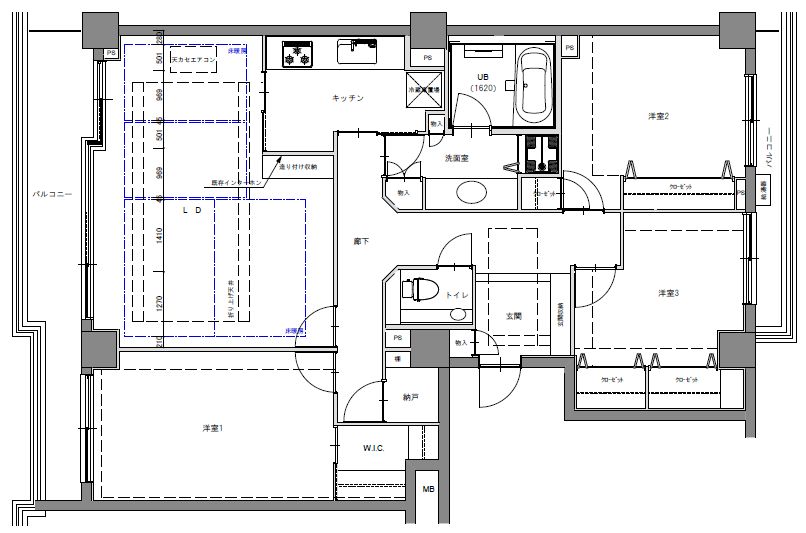
現況平面図

プラン平面図

事例DATA

  • 所在地:東京都世田谷区
  • 建物の種類:マンション
  • 築年数:13年
  • 施工期間:20日間
  • 施工面積:45㎡
  • 費用:460万円