北欧×フレンチアンティーク風へ、全面リノベーション!

※写真をクリックすると拡大して事例写真をスライドしながら見ることができます。

ルーフバルコニーから緑が見える気持ちのいいマンション。

細かく間仕切られていたLDKと和室を開放感のあるLDKと寝室に変更したい。
自然素材で居心地のいい空間にしたい。
造作洗面台は、タイルを使って清潔感と温かみのある雰囲気にしたい。

そんなご要望をいただきました。

パインの無垢フローリングは、自然塗料(リボス)でホワイトに。
時間が経つにつれ、アンティークのような雰囲気にもなる、味わい深い素材で仕上げました。

2面採光の明るいリビング

アンティーク風のパイン無垢フローリングとブルーのドアがかわいらしい。

キッチン側からLD方向

ニッチにブルーの建具に、お気に入りがたくさん目に入るとキッチンに立つのもウキウキします。

やさしい雰囲気

リビングからキッチン、寝室側を見ると、アール壁とニッチにやさしい雰囲気を感じます。

取手にもこだり

ブルーの木製建具が白い空間のアクセント。取手にもこだり、アンティーク風のものを選定。

造作洗面台

造作洗面台はアンティークの木目柄。水・傷に強いメラミンカウンターです。

水栓

水栓は、ツーハンドルの輸入品。

ガラスモザイクタイル

絶妙な色合いが雰囲気を作り出す、ガラスモザイクタイル。

カゴを使って小物を収納

洗面台の下はオープン棚。タオルや、カゴを使って小物を収納できます。

落ち着くトイレ

珪藻土塗りの落ち着くトイレ。消臭効果にも期待です。

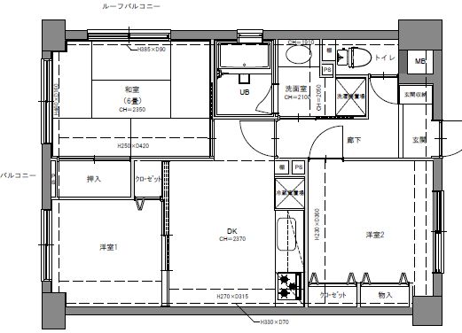
現況平面図

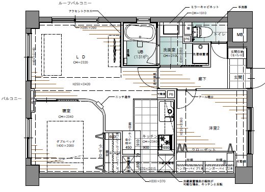
プラン平面図

事例DATA

  • 所在地:横浜市港北区
  • 建物の種類:マンション
  • 築年数:22年
  • 施工期間:1ヶ月
  • 施工面積:65㎡
  • 費用:600万円