62㎡家族全員に自分のスペースを!心地よい風が通り抜ける家

※写真をクリックすると拡大して事例写真をスライドしながら見ることができます。

もともとお住まいのマンションリノベーション。
お子様の成長に伴い、使いにくい間取りを変えたいと思われたのがきっかけでした。

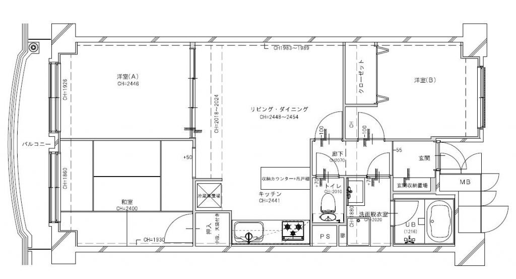
バルコニー側に個室が2室、共用廊下側に1室、LDKは窓のない家の中央に配置された3LDK。
キッチンは、昼間でも電気を点けないと暗く、壁に向かった配置で独立した雰囲気でした。

明るいLDKにしたい。
狭くてもいいからご主人様がこもれるワークスペースがほしい。
家族全員で使えるウォークインクローゼットがほしい。
全然風が通らない。
キャットウォークを作ってあげたい。
今のお住まいだからこそわかる、ここを直したい!こうだったらいいのに!
をお伝えいただきながら、プランニングがスタート。

プランを開始して一番気になったのは、寝室になる個室が、エレベーターを降り、外廊下を通る人の気配を非常に感じやすい配置だったこと。
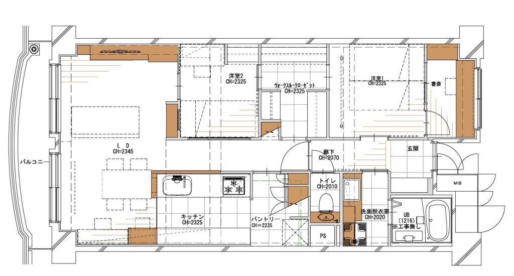
そこで、ご主人様のワークスペースを共用廊下側に配置し、寝室にワンクッション置くご提案をしました。
ワークスペースと寝室は、室内窓を設けた壁で仕切り、落ち着いたおこもり感を演出。

LDKは、バルコニー側に配置し、子供部屋、W.I.C.、寝室を連続して配置したことで、すべての窓、扉を開ければ、外廊下側~バルコニーまで風が抜ける気持ち良い間取りに。
W.I.C.は、廊下からもアクセスできるので、いつでも誰もが利用しやすい大容量収納になりました。

キッチンには、パントリーを設け、引き出し収納に続けて、奥様の専用デスクカウンターを造作し、趣味のピアノを並べるご提案に。
家事の合間に書き物をするにも便利な配置です。
もう1匹、大切な家族の猫・ジローちゃんには、みんながいつもいる場所にキャットウォークを造作しました。
トール収納の上には、ジローちゃんお気に入りのケースを載せて。
家族みんながそれぞれの場所でも、一緒にもくつろげる、心地よい家になりました。

キッチン前の腰壁にさりげないアクセント

キッチン前の腰壁には、タイルを貼り、さりげないアクセントに。
ダイニングテーブル側には、ニッチを造作して、テーブルに置いて邪魔になりがちなティッシュ置場を設けました。
キッチンに立っていても家族が一体感を感じられる配置になっています。

広がりを感じられるダイニングキッチン

キッチン、カウンター収納、廊下と、縦長ラインが平行にそろい、広がりを感じられるダイニングキッチン。
アクセントにブラック、ネイビーとダークカラーを使いつつ、明るいブルーグレーの壁紙を組み合わせて、重くならないようにしています。

カウンター収納

キッチンと同じ幅で配置されたカウンター収納。
引き出しで出し入れしやすく、たくさん収納できるのでキッチンがすっきりとしています。
食器、ストック品などキッチンで日常的に使用するものをひとまとめにできるのは、家事効率アップにつながります。

パントリー

普段あまり使用しない大き目の食器や、お水のストック、ゴミ箱、そして掃除機まで収納できるパントリー。
買い物から帰ってリビングのドアを開けると、すぐにアクセスできるので、冷蔵庫までの導線が短いのも嬉しいポイントです。

家電に混じって猫ちゃんがいることも

すべての家電を載せられる大容量のカウンター収納は、食器のほか、ストック類まで収納可能。
引き出し収納なので、出し入れもしやすい仕様になっています。
時には、家電に混じって猫ちゃんがいることも。

オリジナルの造作収納

扉付きのトール収納と、テレビボード、キャットウォークを一体化した造作収納を設けました。
TVボードは、フロートにして軽やかな雰囲気を出しながら、下部はお掃除ロボットの置場を兼ねています。
家族みんなが使いやすい場所に本棚も設けました。
上部の室内窓は、お子様のお部屋に明かりと風を運び込み、LDのアクセントにもなっています。

キャットウォークを登っていく猫ちゃん

ひょいひょいっと。
簡単にキャットウォークを登っていく猫ちゃん。
マンション住まいで猫ちゃんと暮らす方のお悩みの一つには、上下運動をさせてあげにくいことがあるのではないでしょうか。
大工が作る、安心・安全なキャットウォークを楽しんでくれている瞬間です。
猫ちゃんの大きさに合わせてオーダーメイドでお作りします。

トール収納の上でくつろぐ猫ちゃん

リビングのトール収納の上でくつろぐ猫ちゃん。
高いところから家族を見守りつつ、お気に入りの箱の上でリラックスしてくれています。
キャットウォークも大工がしっかりと作っているので、落ちたり歪んだりする危険がありません。
ジローちゃんもリノベーションして良かったと思ってくれているでしょうか・・!?

最小限のスペースながらも明るい書斎

全面に大きなサッシがあるので、最小限のスペースながらも明るい書斎。
壁面いっぱいの長いカウンターは、1人で使うには持てあましそうなほど。
下部にオープン棚を設けたり、有孔ボードを貼ったりと、居心地が良さそうで憧れの空間です。

リモートワークの時にも便利なおこもり空間

書斎は、リモートワークの時にも便利なおこもり空間。
音やご家族の気配を気にせず、仕事にも集中できそうです。
奥には壁いっぱいの可動棚収納を設け、ケースを利用して自分仕様にカスタマイズした収納になっています。

趣味のものを飾ることができる遊び心満載

ご主人様専用の書斎には、有孔ボードを貼り、趣味のものを飾ることができる遊び心満載。
気分によって配置を変えたり、増やしたり、わくわくしながら眺めるのも楽しみの一つかもしれません。

静かで暖かい寝室

外廊下側に書斎を配置して、パブリックスペースからワンクッション置くことで静かで暖かい寝室になりました。
室内窓で明るさと風通しは確保。
アクセントクロスは、リビングのドアとリンクさせたネイビーで、ゆったり落ち着いて眠れる空間に。

トールの全面収納で収納力が抜群

靴は、トールの全面収納で収納力が抜群に上がりました。
床からフロートさせて、間接照明を仕込んでいます。
土間は、タイル貼りで雰囲気がぐっと良くなりました。
オークの無垢材との相性も◎

廊下の圧迫感と暗さが解消

子供部屋に配置した室内窓により、廊下の圧迫感と暗さが解消。
ネイビーのドアもアクセントになっています。
W.I.C.の収納と互い違いにするように、廊下側に猫トイレ置場を設けてます。

孤立しない配置の子供部屋

基本は、リビングからのアクセスで、孤立しない配置にしています。
デスク置場とオープンクローゼットを備えた子供部屋。
キッチン側の通路と、リビングに向けて室内窓を配置し、W.I.C.へもつながっています。
すべてのドアを開けると、外廊下側の書斎まで風が流れ、角部屋でなくても心地よい風通しを確保できます。

オーダーメイドの造作洗面台

広いカウンターが便利なオーダーメイドの造作洗面台。
壁に貼ったタイルに壁付けの水栓で、好みの見た目と掃除のしやすさを両立しています。
洗濯機上のオープン棚には、ブラックパイプをつけて、ハンガー収納と仮掛けに利用できるようにしています。

大きなシンクの造作洗面台

ミラーキャビネットの収納には、こまごましたものをしまっています。
床は、目地材を入れた塩ビタイル。
本物のタイルほど冷たさや硬さがなく、掃除がしやすい・水に強いのがうれしいポイント。
見た目は本物のタイルそっくりです。

工事前写真

現況平面図

プラン平面図

事例DATA

  • 所在地:横浜市西区
  • 建物の種類:マンション
  • 築年数:40年
  • 施工期間:2ヶ月
  • 施工面積:60㎡(UB工事なし)
  • 費用:930万円